Wettbewerb Altes Feuerwehrareal Ettlingen

Visualisierung:
stuchlik3d, Pfinztal

Wettbewerbsaufgabe:

Gegenstand des Wettbewerbs ist der hochbauliche und freiraumplanerische Vorentwurf für die Neubebauung des alten Feuerwehrareals sowie die städtebauliche Einbindung (Ideenteil) für das erweiterte Wettbewerbsgebiet.

Konzept:

Städtebauliche Fügung des Realisierungsteils
Die vorhandene Häuserzeile entlang der Pforzheimer Straße wird Richtung Herz-Jesu-Kirche vervollständigt und in die Ludwig-Albert-Straße hineingeführt. Hierbei wird bewusst nicht entlang der Grundstücksgrenze geplant, sondern in gerader Verlängerung des Hotels Sonne. Dies stellt in erster Linie das prächtige Portal der Herz-Jesu-Kirche besser frei und verbreitert zudem den Fußgängerbereich vor den Gewerbeflächen, sodass eine großzügige Außenbestuhlung ermöglicht wird.
Am Ende des Investorengrundstücks knickt das Gebäude ins Blockinnere ab und schafft einen klaren Übergang zur anschließenden Einzelhausbebauung, die mit drei Gebäuden der Baugruppe startet. Die Lücke zwischen den beiden Baubereichen ist gleichzeitig die Erschließung des Blockinnenbereichs. Hier finden sich die fußläufigen Zugänge für die Wohnhäuser von Baugruppe und Investor, die mit einer Spiel- und Sitztribüne überdachte Zufahrt zur Tiefgarage, der dahinterliegende Kinderspielplatz und die Durchwegung zur Adolf-Kolping-Straße.
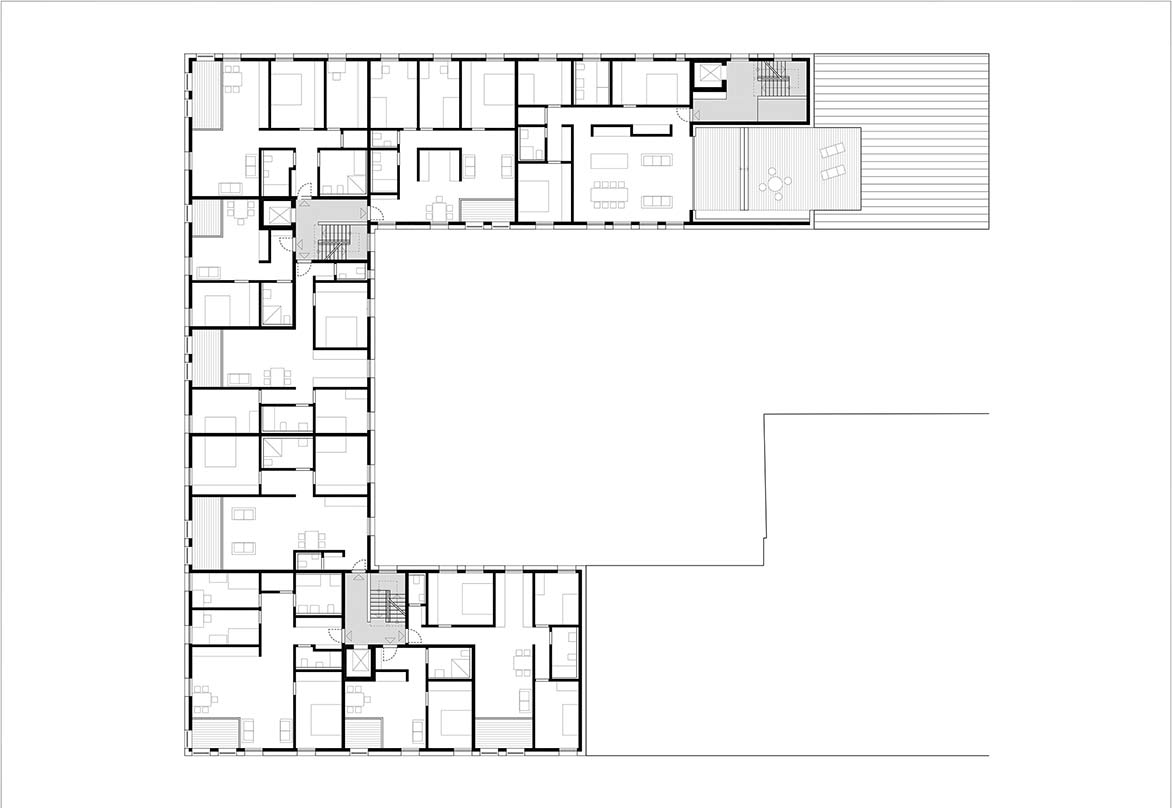
Das Gebäude
Das Gebäude orientiert sich in Maßstäblichkeit, Materialität und den gestaltgebenden Details an der umliegenden Bebauung. Eine dreigeschossige Fassade, gegliedert in eine robuste Sockelzone und eine darüber liegende hell verputzte, zweigeschossige Lochfassade vermittelt in Verbindung mit einem klassisch geneigten Metalldach ein vertrautes Bild. Im Detail wird dieser Eindruck vertieft, ohne historisierend zu werden. Scharf geschnittene Kanten, präzises Mauerwerk, geglätteter Putz, moderne, aber zurückhaltende Gauben sind wesentliche Gestaltungsmerkmale die sich in Verbindung mit den reihenden, stehenden Fensterformaten und Gauben wie selbstverständlich ergänzen. Die Loggien, der bei genauer Betrachtung leicht variierende Fensterabstand sowie die gezielte Anordnung der Dachentwässerung parzellieren das kräftige Gebäudevolumen wieder in gewohnte Einheiten, wenngleich die mächtige Kirche in der Nachbarschaft einen Gesamtbaustein in der geplanten Größe gut verträgt.
Die Nutzungen
Im Erdgeschoss entlang der Pforzheimer- und der Ludwig-Albert-Straße finden sich die Gewerbeflächen. In der Fassade sind diese durch den Klinker leicht ablesbar. In allen anderen Gebäudeteilen sind die unterschiedlichsten Wohnungen untergebracht, von denen jede ihren eigenen Charme hat. Es gibt Wohnungen mit Garten, Wohnungen mit Blick auf die Herz-Jesu-Kirche, die Altstadt, den Wattkopf, Wohnungen mit Loggien und/oder Dachterrassen, kleine 2-Zimmer-Wohnungen bis zu großen 4-5 Zimmer-Wohnungen.
Die äußere und innere Erschließung
Es gibt beim Investorenteil drei Gebäudeschenkel, somit drei eindeutige Adressen und drei leicht auffindbare Hauszugänge, die selbstverständlich vom Gehweg aus direkt erschlossen sind. Alle Hauszugänge binden in den Innenhof durch, wobei es noch einen offenen Durchgang zusätzlich für die Fahrradandienung gibt. Da im EG nur Gewerbe angeordnet ist, hat der Innenhof mehrere Funktionen. Er dient zur Anlieferung für die Gewerbeflächen, als Pausenfläche für die Mitarbeiter, sowie als Fahrradport für alle Nutzer. Die drei Treppenhäuser und die Aufzüge führen alle bis in die Tiefgarage hinab. Alle Wohnungen sind barrierefrei erreichbar.
Quartiersplatz
Der Quartiersplatz liegt an der Schnittstelle zwischen Investoren- und Baugruppenbebauung. Zum Quartiersplatz sind ausschließlich Wohnungen orientiert, sodass diese wichtige Freifläche zur Kommunikationsplattform für die Bewohner beider Bereiche wird. Durch verschiedene Höhen werden die Flächen subtil gegliedert. Die begrünte, tribünenartig aufsteigende Überdachung der Tiefgaragenabfahrt schließt die große Spielplatzfläche zur Ludwig-Albert-Straße räumlich ab, schafft Ruhe und Sicherheit. Die Tiefgarage erhält an dieser zentralen Stelle einen offenen, direkten Zugang.
Stellplätze und Müll
Der geforderte Stellplatzschlüssel von 1,5 Stpl./WE wird zu 100 % in der Tiefgarage erfüllt. Alle notwendigen Fahrradstellplätze sind überdacht im Fahrradport bzw. in der Tiefgarage untergebracht. Der Müll wird zentral in der Tiefgarage, direkt neben der Abfahrt gesammelt, um die Freiflächen im Erdgeschoss nicht zusätzlich zu belasten.
Die Baugruppe
Die am besten zu realisierende Organisationsform für Baugruppen ist die der aus Einzelgebäuden gebildeten Baugruppe. Deshalb schlagen wir drei Gebäude mit jeweils drei Townhouses vor. Alle sind Ost-West ausgerichtet, haben einen eigenen Garten sowie eine Dachterrasse mit Blick zum Wattkopf. Das Erdgeschossniveau ist gegenüber dem Gehweg der Ludwig-Albert-Straße um ca. 60 cm angehoben, sodass eine größere Privatheit gewährleistet ist, die Gebäude aber trotzdem über den Quartiersplatz barrierefrei erreichbar sind. Die neun Parteien haben ähnliche Grundstückszuschnitte und ähnliche Baubedingungen mit überschaubaren Grundstücksgrößen. In Verbindung mit den kompakten Baukörpern lässt dies auf günstige Investitionskosten schließen, sodass insbesondere junge Familien angesprochen werden. Für die Baugruppe ist ein Tiefgaragenteil geplant, der über die gemeinsame Tiefgaragenzufahrt mit dem Investorenteil funktioniert. Fahrrad- und Müllunterstände sind den drei Gebäuden direkt zugeordnet.
Der Ideenteil
Im Ideenteil gehen wir davon aus, dass das Parkdeck komplett rückgebaut wird. Das dann zu Verfügung stehende Baugelände wird mit drei neuen Baukörpern arrondiert. Der nördliche kann als Erweiterung des bestehenden Gemeindehauses gesehen werden, der mittlere soll den Quartiersplatz nach Osten räumlich begrenzen, der südöstliche begleitet die Durchwegung zur Adolf-Kolping-Straße. Die Baumasse orientiert sich an der zweigeschossigen Nachbarbebauung. Die Stellplätze für den Ideenteil sind in einer Tiefgaragenerweiterung untergebracht, die über die gemeinsame Zufahrt von der Ludwig- Albert- Straße erschlossen werden kann.
Materialkonzept
Für das Feuerwehrareal Ettlingen wurde ein Materialkonzept gewählt, welches sich in die Umgebungsbebauung einfügt und dennoch modern und zeitlos ist.
Das Material Klinker
Dauerhaft, robust, wertig, das sind die Eigenschaften des Klinkers. Diesen sehen wir als das Material an der am meisten beanspruchten Stelle eines jeden Gebäudes, am Sockel entlang des Gehwegs. Von den Materialeigenschaften ganz abgesehen, vermittelt der Stein jedem Gebäude Stattlichkeit, die an dieser wichtigen Stelle im Stadtbild von Ettlingen für uns gesetzt ist. Die Farbigkeit des Klinkers sehen wir in Anlehnung an die des gelben Sandsteins, der sich auch im Umfeld wiederfindet. Im Detail liegt die Betonung in der horizontalen Schichtung, die die Länge betont. Dies wird durch zurückliegende Lagerfugen und stumpf gestoßene Stoßfugen erreicht.
Das Material Putz
Hell, fein, elegant, so sehen wir den Putz in der Beletage, in den Wohngeschossen über dem Sockelgeschoss. Er steht im Kontrast zum rauen Klinker, reflektiert die Sonne, vermittelt Helligkeit. Im Detail liegt die Betonung im Putzmaterial, in der Feinkörnigkeit und der Endbehandlung der Oberfläche. Die Flächen werden gefilzt und geglättet, die Körnung verschwindet, dazu ist ein Oberputz auf Kalkbasis erforderlich. Die handwerklich unvermeidbaren Verarbeitungsspuren geben dem Gebäude im Streiflicht etwas Unverwechselbares, Einzigartiges.
Das Material Stahl
Präzise, filigran, edel wünschen wir uns die Oberflächen der Metallteile in der Fassade. Dazu gehören die Fensterelemente ebenso wie die Fenster- und Loggiabrüstungen ohne technische Allüren mit einfachem Stab als Füllung. Die Beschichtung ist in einem dunkleren Braunton mit seidenmattem, metallischem Glanz vorgesehen.
Das Metalldach
Glatt, rhythmisierend, ruhig soll die Dachfläche werden. Die Stehfalzdeckung mit halb umgelegtem Steg wird in handwerklicher Perfektion dem Gebäude den oberen Abschluss liefern. Das vorbewitterte Titan-Zinkblech wird in einem seidigen, dunklen Grau zu keinen Farb- und Glanzüberraschungen führen. Die Gauben sind in die Reihung der Blechscharen exakt eingefügt, wobei sich diese mit steglosen Fassadenplatten, jedoch im gleichen Farbkanon wie die Dachfläche, modern und elegant mit der Dachfläche arrangieren.